492_Stadtbad_web slider2
492_Stadtbad_web slider3
492_Stadtbad_web slider4
492_Stadtbad_web slider5
492_Stadtbad_web slider6
492_Stadtbad_web slider7
492_Stadtbad_web slider8
492_Stadtbad_web slider9
492_Stadtbad_web slider10
492_Stadtbad_web slider11
492_Stadtbad_web slider12
492_Stadtbad_web slider13
492_Stadtbad_web slider14
492_Stadtbad_web slider15
492_Stadtbad_web slider16
492_Stadtbad_web slider17
492_Stadtbad_web slider18

Vom historischen Wandelgang in die zukünftige Bespielung

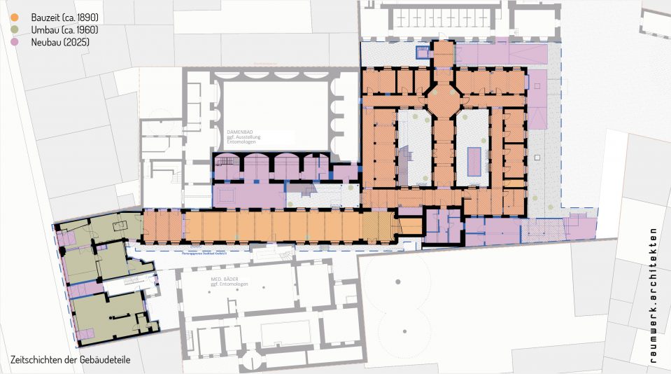
Das gründerzeitliche Stadtbad Krefeld, Baujahr 1890, ist ein historischer Gebäudekomplex im südlichen Teil der Krefelder Innenstadt. Mehrere miteinander verbundene Gebäudeteile erstrecken sich über einen rund 8.000m² großen innerstädtischen Häuserblock zwischen Neusser Straße und Gerberstraße: Vorderhaus Neusser Straße, Wandelgang, Damenbad, Medizinische Bäder, Bädertrakt, Herrenbad und Freibad. Das Gebäudeensemble ist Eigentum der Stadt Krefeld und steht unter Denkmalschutz. Seit der Einstellung des Schwimmbadbetriebs im Jahr 2003 steht das Gebäude leer und befindet sich heute in einem stark sanierungsbedürftigen Zustand.

Die Stadt Krefeld hat eine gemeinbedarfliche Nachnutzung des Denkmals beschlossen. Diese kann in das strukturell defizitäre Quartier hineinwirken, eine öffentliche Zugänglichkeit des Gebäudes schaffen und damit zur Identifikation der Krefelder:innen zu diesem besonderen Ort beitragen.

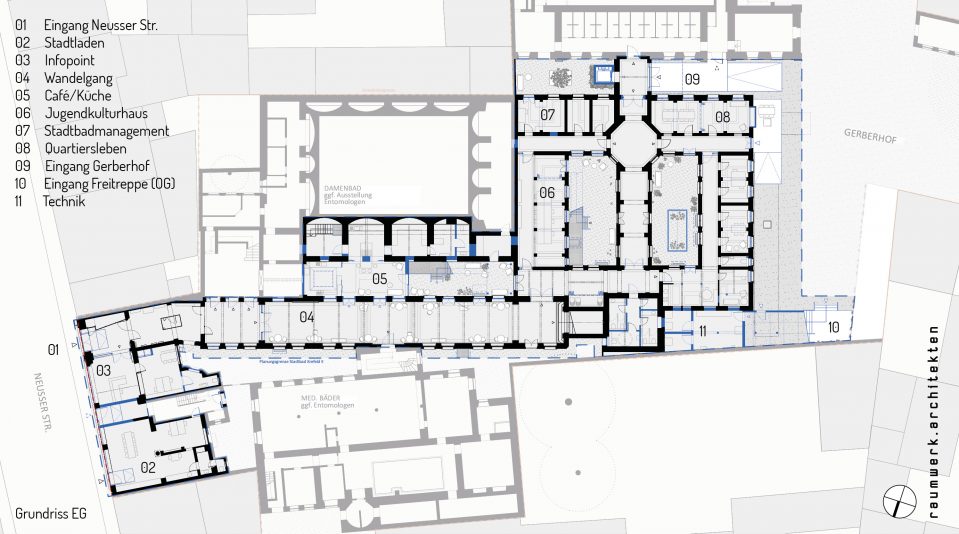
In vier Planungsabschnitten soll das Ensemble sukzessive entwickelt und neuen Nutzungen zugeführt werden. Dieser Planungsabschnitt bildet nach der Umplanung des Freibad-Bereiches den zweiten Abschnitt und umfasst räumlich das Erdgeschoss des Vorderhauses an der Neusser Straße, den historischen Wandelgang sowie den zweigeschossigen Bädertrakt. Die Gebäudeteile sollen zukünftig nicht nur der öffentlichen Durchwegung und der Erschließung der später angrenzenden Nutzungsbereiche dienen, sondern umfassen neben kommunalen Nutzungen (Stadtladen, Quartiersraum, Jugendkulturhaus und Beratungsangeboten) auch ein Café. Der Wandelgang soll nutzungsflexibel auch z.B. für Veranstaltungen und als erweiterter Gastraum des Cafés genutzt werden können.

https://www.krefeld.de/stadtbad
Instagram: @stadtbadkrefeld


Entwurf (LPH 1-3): raumwerk.architekten

Auftraggeber:in: Stadt Krefeld

Zeichnungen, Grafiken, Fotos: raumwerk.architekten, historisches Fotomaterial

  • Date: August 2024 - Juli 2025
  • Filed under: Gemeinschaft, Konzept, Prozess, Stadt, Transformation